Menu

Chaudière collective biomasse

< précédent/suivant >

Une chaudière collective en coeur de hameau

Le projet se consiste à créer un réseau de chaleur qui dessert plusieurs bâtiments : la presbytère, le logement du curé, la maison Gavoye, le logement Roland et le bâtiment de la mairie, la salle des fêtes et les deux logements. La commune bénéficie d'aides financières destinées à encourager le remplacement des dispositifs de chauffage au fioul par des combustibles plus écologiques.

Tout terrain est chargé de la maitrise d'oeuvre architecturale du bâtiment qui abrite le silo de stockage du combustible et les chaudières.

Préserver les espaces verts

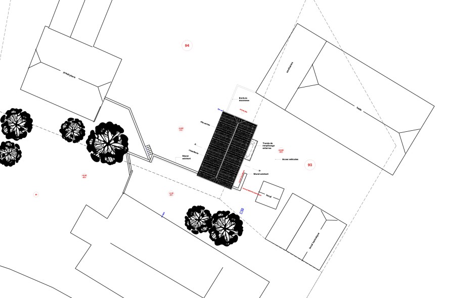
Le terrain destiné à recevoir la chaudière collective est situé au Nord de l’église du Girmont-Val-d’Ajol, entre le presbytère et le petit bâtiment technique situé derrière l’église. La parcelle est en forme de U, elle est marquée au Nord par un mur d’enceinte en pierre.

L’implantation du bâtiment est pensée pour préserver au maximum l’espace vert existant. Le bâtiment crée vient s’implanter sur la limite Sud de la parcelle, sa façade Sud repose sur le muret existant. Le bâtiment est implanté perpendiculairement à ce muret, il suit la rupture de pente qui séparer le parvis de la halle de l’espace vert.

S'insérer dans le tissu existant

Le bâtiment d'une surface modeste présente une volumétrie simple, de forme rectangulaire, il mesure 10,90 m de long par 5,5 m de large. Il est couvert par une toiture à deux pans, réalisée avec des croupes à la manière de la plupart des bâtiments existants du site et pour réduite l’impact visuel du bâtiment et. La toiture présente un débord de 0,50 m de part est d’autre des murs périphériques.

Maitriser l'écriture architecturale

Le bâtiment présente une grande simplicité, il compte deux portes qui permettent d’accéder à l'espace de chaufferie et au silo de stockage du combustible. Il comporte également un dispositif d'aération haute et basse des différents espaces par des ouvertures étroites qui rythment les façades.

La maçonnerie est réalisée en parpaings recouverts d'enduit à la chaux, la charpente en sapin issu des forêts vosgiennes est couverte de tuile de terre cuite et les menuiseries sont en aluminium.

Soigner la mise en oeuvre

L'ensemble des intervenants du chantier sont des petits entrepreneurs basés dans les Vosges. Ils partagent avec Patrick Vincent - le Maire de la commune, l'amour du travail bien fait et la convivialité.

Le bâtiment a été livré à la fin du printemps 2025, juste à temps pour le démarrage de la saison des marché d'été qui font vivre le village de juillet à septembre.